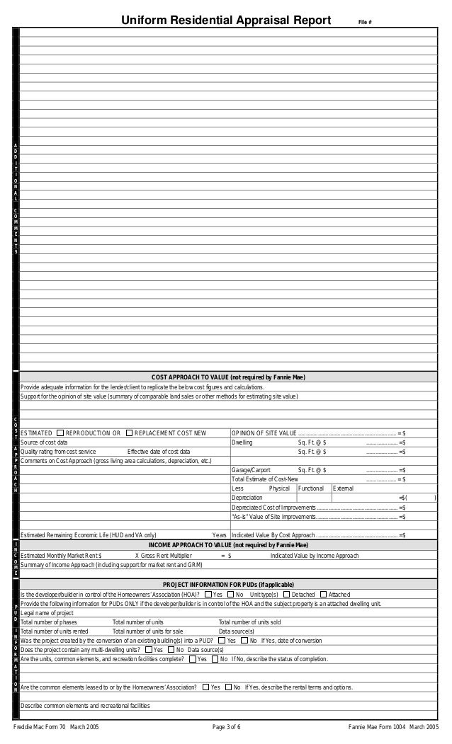
Real Estate Appraisals Freddie Mac Pdf Book
Freddie macs appraisal requirements for these property types can be found in guide chapters h33.

Real estate appraisals freddie mac pdf book. Read cattell culture fair test mobipocket. Coronavirus mortgage real estate fannie mae freddie mac relax appraisal employment verification standards in wake of coronavirus. Describe geographic and demographic issues in rural appraisals. Review methodologies for extracting and supporting adjustment rates for comparable sales.
O involves a residential real estate transaction where the appraisal conforms to the fannie mae or freddie mac appraisal standards. In addition to the requirements outlined in chapters 12 14 of the freddie mac multifamily sellerservicer guide guide below is a list of best practices to help you evaluate real estate appraisals. Demonstrate issues of highest and best use analysis in rural appraisals. We also require additional qualifications for appraisers conducting appraisals of manufactured homes.
Will allow drive by and desktop appraisals in certain circumstances. Real estate appraisals freddie mac pdf book menu. Freddie mac allows the appraiser to use older comparable sales comparable sales that are farther from the subject property and comparable sales that have differing degrees of comparability to the subject property as long as the appraiser can justify and support such use in the appraisal report. Appraisal underwriting participant manual genworth mortgage insurance customer training 110494221015 mrev 050119 genworth mortgage insurance corporation c2019genworthfinancialincallrightsreserved.
Freddie mac requirements include specific eligibility requirements as well as additional appraisal requirements for such property types. This is a nice 18 unit property with attached garagesthe appraiser is citing the sale of three class a single family townhouse sales to establish a per unit estimate of value. A sequence for academic writing add comment cattell culture fair test edit. List and describe freddie mac guidelines in section 5601 of the freddie mac single family sellerservicer guide.
In addition on april 14 2020 the fdic frb and occ issued an interim final rule temporarily amending their appraisal regulations to provide that the completion of appraisals. Consequently it is imperative that real estate appraisers have access to timely and relevant appraisal information for navigating this crisis. The covid 19 pandemic represents an unprecedented challenge to the real estate appraisal profession. Appraisal form reference guidecovid.
Freddie macs property and appraisal requirements.








































































